First Floor Maisonette Let
St. Margarets Road, Twickenham,
£2,400PCM £554PW £21 per sqft

Applicable fees


Bedroom Icon 3 Bed      Bathroom Icon 1 Bath    
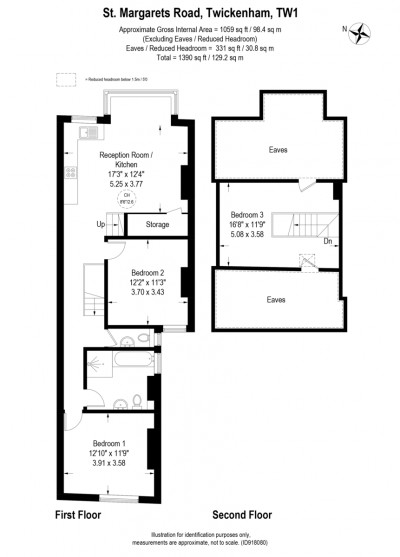
Reception Icon 1 Reception     1390 sq ft



ENQUIRE
NOW

About the property

This stunning period property occupies the first and second floor of this particularly attractive Victorian house. Property has been fully refurbished, with brand new kitchen, bathroom, toilet and new carpets Internally the apartment offers generous and well-planned accommodation with a large and striking principal reception room with semi open plan kitchen, two double bedrooms, a spacious bathroom and a versatile loft room which is ideal as an occasional third bedroom, study or den. The property is within 400 metres of the river Thames and Richmond Lock and 700 metres from St Margarets mainline station and the village high street with its wonderful selection of shops. Looking for short term let only, around 6 months, as property will be listed for sale. Virtual tour available on request

Features

  • Three spacious bedrooms
  • Close to station
  • Period features
  • Fully refurbished to a high standard
  • New carpets
grid
X

FLOORPLAN

Floorplans For St. Margarets Road, Twickenham


Your results